Achat appartement de standing neuf avec vue mer vers Carqueiranne Le Pradet 83

Achat appartement de standing neuf avec vue mer vers Carqueiranne Le Pradet 83
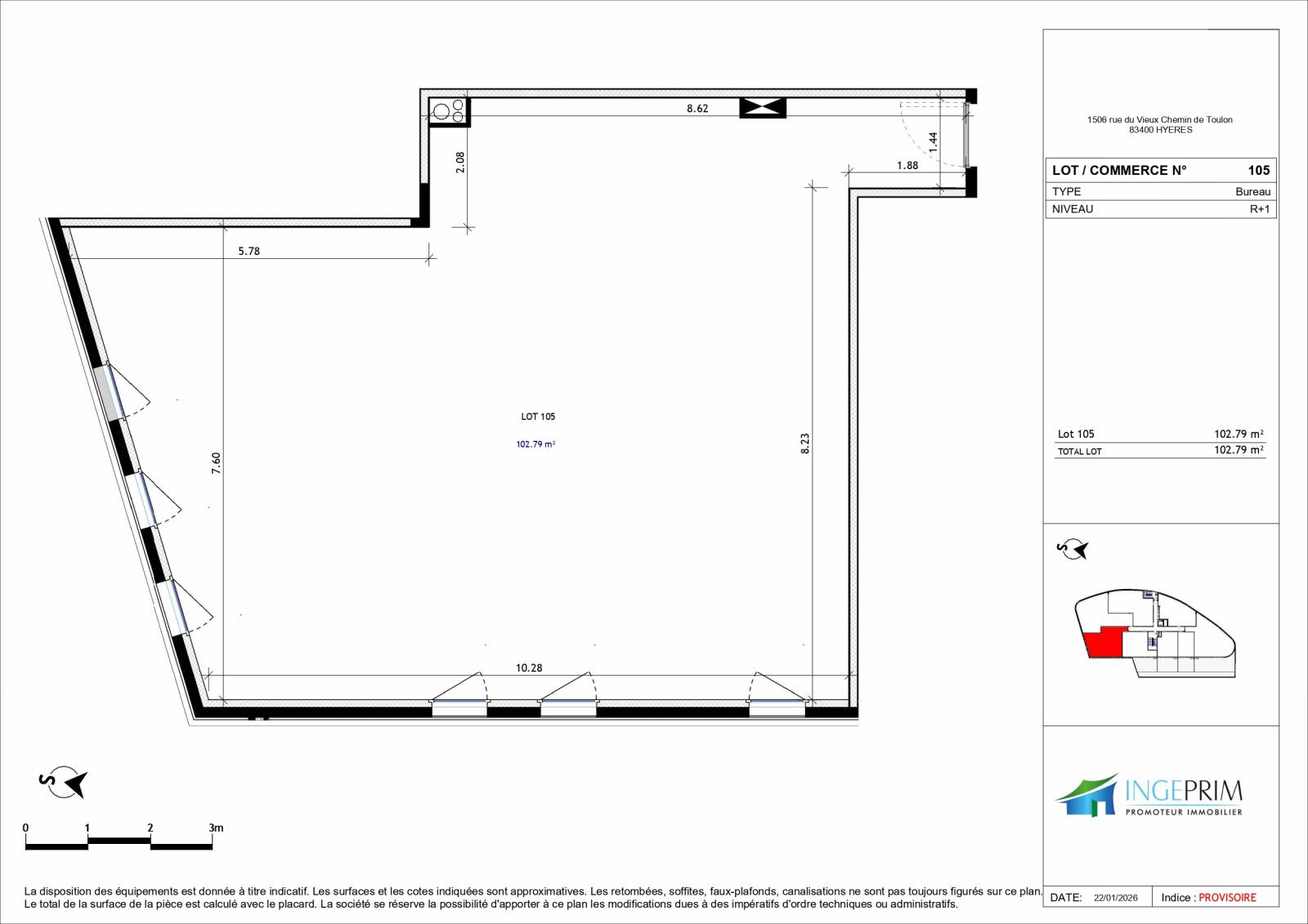
Bureaux neufs lumineux à louer à Hyères St Gervais accès direct autoroute : idéal professions libérales ou start-up

Bureaux neufs lumineux à louer à Hyères St Gervais accès direct autoroute : idéal professions libérales ou start-up

euro
À partir de 1 644€ HT€ *
fullscreen
Bureau
À louer : bureaux neufs divisibles au Carré Ouest à Hyères. Surfaces de 80 à 600 m², grandes terrasses, parkings, emplacement stratégique proche des axes routiers.
En savoir plus
Les Îles d'or : Résidence immobilière de 7 appartements neufs avec vue mer nichée dans les hauteurs de Hyères dans le Var

Les Îles d'or : Résidence immobilière de 7 appartements neufs avec vue mer nichée dans les hauteurs de Hyères dans le Var

fullscreen
Appartements neufs
place
Hyères (83)
Idéalement placée dans le très prisé quartier de "Chateaubriand", les "Iles d'Or" est une résidence intimiste dominant le centre ville de Hyères, comprenant deux petits bâtiments (Porquerolles et Port Cros) totalisant 7 appartements et une villa individuelle. L'ensemble des appartements est orienté au Sud et bénéficie d'une vue imprenable sur la ville, les Iles d'Hyères, l'Almanarre, le Fort de Brégançon et la presqu'ile de Giens.
En savoir plus
Parc Avenue : Résidence neuve de 13 appartements de grand standing en accession libre proche du parc Olbius Riquier et de la ville à Hyères dans le Var

Parc Avenue : Résidence neuve de 13 appartements de grand standing en accession libre proche du parc Olbius Riquier et de la ville à Hyères dans le Var

fullscreen
Appartements neufs
place
Hyères (83)
Dans le prolongement de la Résidence 18 Olbius Riquier qui a connu un franc succès, Parc Avenue est une petite résidence de 13 appartements de grand standing en accession libre (sans logements sociaux, contrairement aux résidences de plus de 10 appartements) qui vous séduira par son architecture contemporaine, sa qualité de prestations et ses grandes terrasses. 
En savoir plus

Nos prestations sur le secteur de vers Carqueiranne Le Pradet 83

Villa Elisa : Résidence prestigieuse de 10 appartements avec stationnements au coeur de la ville de Hyères à 5 minutes à pied de l'Avenue Gambetta.

Villa Elisa : Résidence prestigieuse de 10 appartements avec stationnements au coeur de la ville de Hyères à 5 minutes à pied de l'Avenue Gambetta.

fullscreen
Appartements neufs
place
Hyères (83)
La résidence est composée de seulement 10 appartements avec stationnements Résolument élégante et parfaitement intégrée à son environnement, l'architecture des façades s'inspire d'un art de vivre mériodonal alliant tradition et modernité. Du 2 pièces au grand 4 pièces familial type villa sur le toit, ces spacieux appartements ont tous été conçus avec de grandes terrasses pour offrir calme, confort, luminosité et sécurité.
En savoir plus
110 Appartement 3 pièces dans résidence haut de gamme

110 Appartement 3 pièces dans résidence haut de gamme

euro
À partir de 295000.00€ *
HYERES, A DEUX PAS DU CENTRE VILLE,Des appartements d'exception avec vues dégagéesSpacieux et lumineux, les logements bénéficient de belles prestations.Les séjours ouverts sur des terrasses prolongées, pour certains par des jardins privatifs en rez-de-chaussée vous offrent de véritables espaces de vie en intérieur comme en extérieur. La situation idéale en centre-ville conjuguée aux prestations de qualité vous feront accéder à une qualité de vie exceptionnelle.  UNE ARCHITECTURE CONTEMPORAINE Eva Rosa Résidence, élégante et intégrée à son environnement, propose unearchitecture moderne alliant matériaux de qualité, confort et luminosité. Cette Hall résidence vous offrira performance et pérennité. L’ensemble de la résidence estidéalement arboré aussi bien sur le boulevard Pasteur qu’en coeur d’îlot. Les logements du studio au grand 4 pièces familial type villa sur le toit profitent de vastes terrasses et loggias. L’espace habitable a été optimisé pour profiter d’une grande pièce à vivre conviviale et ouverte vers l’extérieur. Bien qu’en centre-ville, le volet paysager a été particulièrement soigné offrant un jardin méditerranéen au coeur de la résidence et une frange paysagère dotée d’agrumes au sud, le long du boulevard Pasteur. Une attention particulière a été portée à la sécurité Résidence sécuriséeAccès avec digicode et vidéophoneGarages avec commande automatiqueContacteurs d’ouverture de fenêtres intégrés dans les châssis (raccordable sur l’alarme)LIVRAISON 1er Semestre 2023
En savoir plus

Notre zone d'activité pour ce service Achat appartement de standing neuf avec vue mer

Résidence de 9 appartements neufs d'exception à la vente du T2 au grand T4 toutes les commodités accessibles à pied en hyper centre-ville de Hyères - Livraison 2025
Travaux en cours

Les Loges Victoria "CARRÉ VICTORIA" Résidence de 9 appartements neufs d'exception à la vente du T2 au grand T4 toutes les commodités accessibles à pied en hyper centre-ville de Hyères - Livraison 2025

euro
À partir de 250000€ *
fullscreen
T4
place
Hyères (83)
Les Loges Victoria - Résidence : Une invitation à la découverte du Carré de la Reine Victoria... Découvrez "Les Loges Victoria", une résidence d'exception située en hyper centre-ville d'Hyères sur l'Avenue des Iles d'or. Ces 9 appartements neufs offrent des prestations haut de gamme. Finitions soignées, espaces lumineux, et emplacement privilégié : un cadre de vie idéal pour les amoureux du centre-ville.
En savoir plus
Pour acheter un appartement neuf vers Carqueiranne Le Pradet 83, contactez Ingeprim, le spécialiste de l'immobilier neuf. Nous proposons de nombreux programmes neufs, en particulier dans des petites résidences de standing idéalement situées en centre-ville ou en bord de mer.

Profitez des avantages fiscaux offerts par les dispositifs Prêt à Taux Zéro+ (PTZ+) et Pinel. Les programmes neufs à vers Carqueiranne Le Pradet 83 et ses environs proposés par Ingeprim permettent de bénéficier de nombreux avantages fiscaux pour un investissement rentable. En tant que promoteur spécialisé, Ingeprim propose des solutions pour la défiscalisation, en utilisant les dispositifs LMNP et PINEL. Nos programmes neufs garantissent un investissement locatif avec rendement élevé, offrant à la fois une plus-value financière. Grâce à nos résidences de standing, vous bénéficiez de tous les avantages fiscaux associés, optimisant ainsi votre investissement immobilier

Que vous souhaitiez réaliser un investissement locatif ou devenir propriétaire pour la première fois, Ingeprim dispose de programmes neufs qui sauront vous séduire. Nos biens sont idéalement situés, dans des cadres calmes et bénéficient de la proximité des commerces et services essentiels.

Pour plus de renseignements sur nos prestations, notamment Achat appartement de standing neuf avec vue mer vers Carqueiranne Le Pradet 83, contactez-nous. Nous vous accompagnons dans vos recherches pour trouver un logement contemporain, construit dans des résidences HQE (Haute Qualité Environnementale) de grande qualité.

Nous écrire
Les champs indiqués par un astérisque (*) sont obligatoires
Nos partenaires
Travaux de peinture décorative et ravalement de façades Solliès‑Ville (Var – 83210), rayonnement sur Hyères et l’ensemble de la région PACA PBM Peinture Bâtiment Méditerranée (PBM Group 83)

Travaux de peinture décorative et ravalement de façades Solliès‑Ville (Var – 83210), rayonnement sur Hyères et l’ensemble de la région PACA PBM Peinture Bâtiment Méditerranée (PBM Group 83).

PBM Peinture Bâtiment Méditerranée (PBM Group 83) est une entreprise spécialisée dans les travaux de peinture extérieure et intérieure et ravalements de façade.
En savoir plus
Conception, fourniture et pose de menuiseries en aluminium et PVC : façades mur rideau, brise‑soleils, garde‑corps, fenêtres cintrées, systèmes sur mesure. La Crau (Var – 83260), rayonnement sur Hyères et région PACA Ruiz Aluminium

Conception, fourniture et pose de menuiseries en aluminium et PVC : façades mur rideau, brise‑soleils, garde‑corps, fenêtres cintrées, systèmes sur mesure. La Crau (Var – 83260), rayonnement sur Hyères et région PACA Ruiz Aluminium.

Ruiz Aluminium fournit et installe des menuiseries en aluminium et PVC, spécialisées dans les façades mur rideau, brise‑soleils et garde‑corps sur mesure.
En savoir plus
Bons plans immobilier

Guide d'achat d'immobilier neuf Toulon Var Guide Jalis.

Vous avez un projet immobilier et vous souhaitez le concrétiser dans les meilleurs délais ? Vous souhaitez acheter un appartement neuf et cherchez la perle rare ? Vous déménagez et cherchez donc une location en bon état et à un prix attractif ? La première étape est de trouver une agence immobilière de confiance qui saura entendre vos demandes et trouver des biens correspondants. Pour vous aider, le Guide Jalis vous propose une liste d'agences immobilières à Marseille, Lyon ou Rouen. Parcourez sans attendre leur site pour dénicher l'appartement ou la maison de vos rêves !
En savoir plus
Un Projet ?
Être rappelé