1. Accueil
  2. Lots
  3. Disponibilité immédiate : Appartement neuf T4 VEFA avec stationnements en centre-ville de Hyères proche de toutes commodités dans le Var

Disponibilité immédiate : Appartement neuf T4 VEFA avec stationnements en centre-ville de Hyères proche de toutes commodités dans le Var

meeting_room
Appartement
fullscreen_exit
81m²
euro
À partir de 560 000 HT€ *
Typologie T4
Nom du programme LES TERRASSES GAMBETTA
Etage 2
Disponibilité DISPONIBILITÉ IMMEDIATE
Surface terrasse 13m²
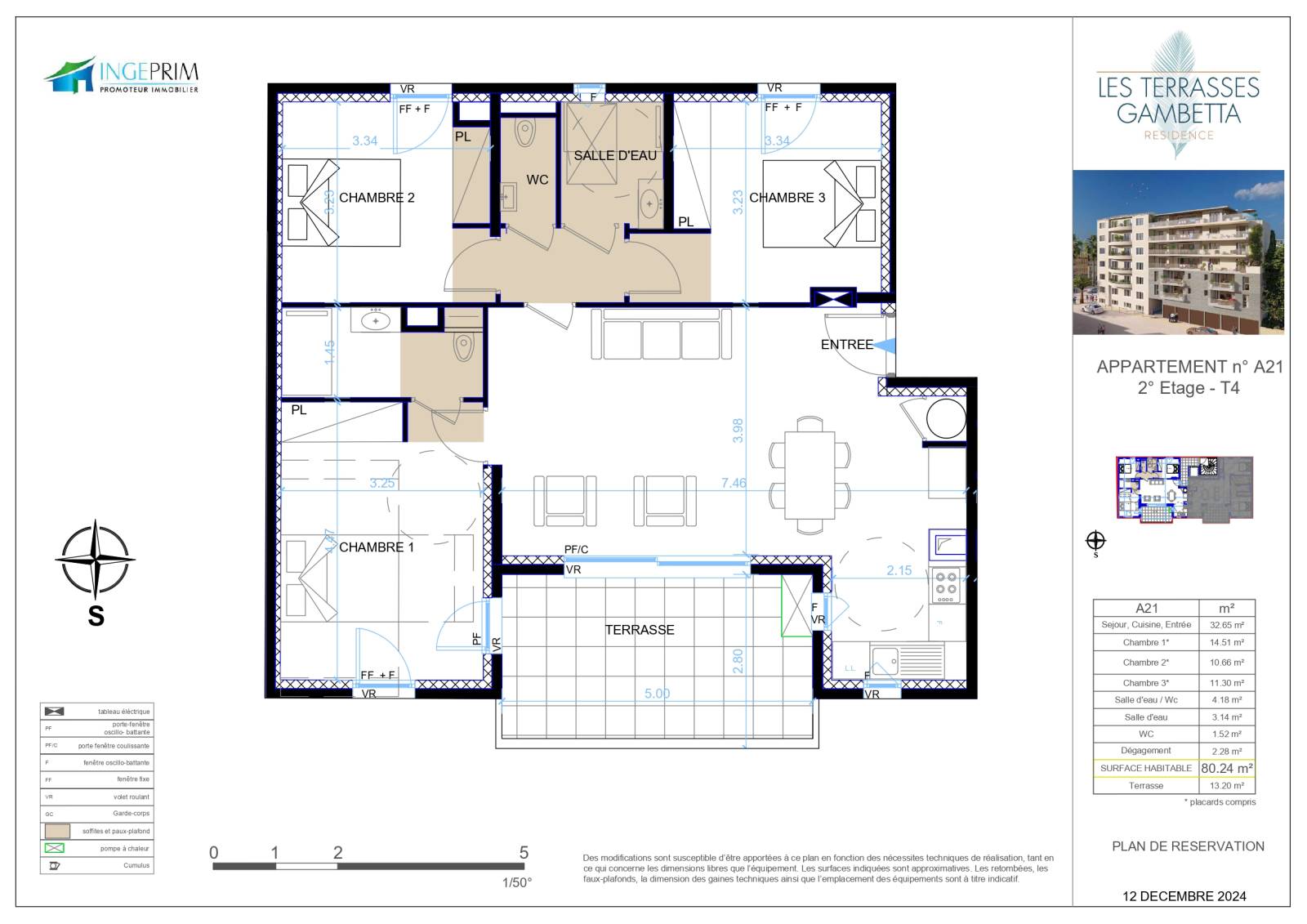
N° de lot 202

Cet appartement de standing, portant le numéro de lot 202, bénéficie d’un emplacement privilégié en plein centre-ville de Hyères et est disponible immédiatement.

Situé au 2ᵉ étage du programme immobilier récent LES TERRASSES GAMBETTA, il offre une surface habitable de 81 m², parfaitement conçue pour accueillir une vie confortable et contemporaine.

Ce T4 dispose d’un agencement fonctionnel permettant de profiter pleinement de chaque pièce, ainsi que d’une agréable terrasse de 13 m², idéale pour prendre ses repas en extérieur, créer un espace détente ou simplement profiter de la douceur hyéroise. L’ensemble propose un cadre de vie moderne, mêlant qualité de construction, confort et proximité immédiate des commerces, services et transports du centre-ville.

Prix de vente : 560 000€ HT 

Que vous recherchiez une résidence principale ou un investissement de qualité dans le Var, cet appartement neuf représente une opportunité rare, alliant situation privilégiée et prestations soignées.

Pour plus d’informations ou pour réserver votre futur logement avec Ingeprim, n’hésitez pas à nous contacter.

Nous écrire
Les champs indiqués par un astérisque (*) sont obligatoires
Un Projet ?
Être rappelé