1. Accueil
  2. Lots
  3. Bureaux neufs lumineux à vendre à Hyères St Gervais avec terrasse accès direct autoroute : idéal professions libérales ou start-up

Bureaux neufs lumineux à vendre à Hyères St Gervais avec terrasse accès direct autoroute : idéal professions libérales ou start-up

meeting_room
Bureau
fullscreen_exit
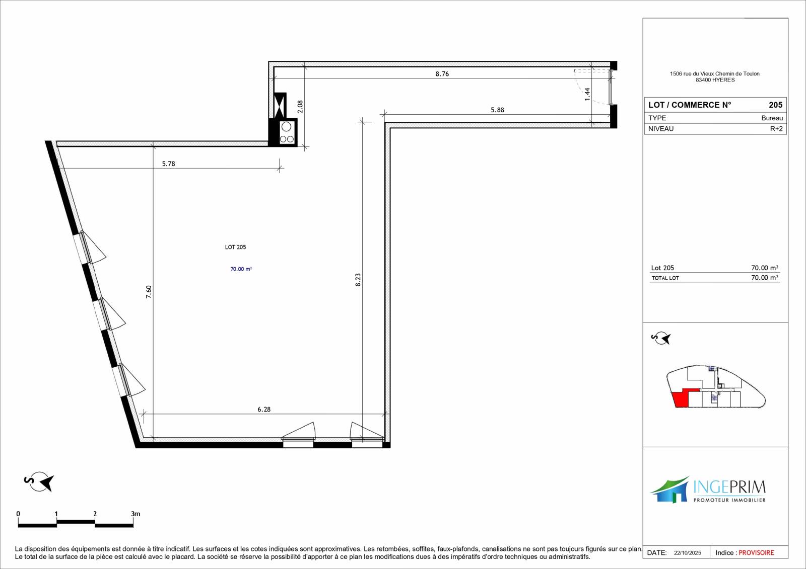
70m²
euro
À partir de 280 000 HT€ *
Typologie Bureau
Nom du programme CARRE OUEST
Etage 2
Disponibilité 2ème trimestre 2027
Surface habitable 70m²
N° de lot 205

Découvrez le programme Carré Ouest à Hyères, dédié aux bureaux neufs à vendre ou à louer. Situé dans un secteur dynamique et en pleine expansion, ce projet propose des surfaces modulables de 80 à 600 m², adaptées à toutes les typologies d’entreprises : professions libérales, start-ups, PME...

Conçus pour répondre aux normes actuelles, les bureaux offrent luminosité, confort thermique et acoustique, accès PMR ainsi qu’une flexibilité d’aménagement. Chaque lot bénéficie de places de stationnement réservées, garantissant confort et accessibilité.

Idéalement situé à proximité des grands axes et des services, le Carré Ouest constitue une opportunité unique d’implanter vos bureaux dans un cadre fonctionnel à Hyères. 

Le Carré Ouest bénéficie d’un emplacement privilégié à Hyères, offrant à votre entreprise une visibilité optimale et une accessibilité incomparable. Le site est stratégiquement positionné à proximité des principaux axes routiers (autoroute A570), de la gare et de zones commerciales dynamiques. Vos clients et collaborateurs apprécieront la facilité d’accès et les parkings dédiés directement disponibles au sein du programme. L’environnement proche, composé de services, restaurants et commerces, rend l’implantation encore plus attractive. Opter pour un bureau au Carré Ouest, c’est choisir un cadre de travail moderne et accessible qui soutiendra la croissance de votre activité.

Les bureaux proposés dans le programme Carré Ouest ont été conçus pour répondre aux besoins des professionnels exigeants. Avec des plateaux lumineux, des surfaces divisibles et la possibilité d’aménagements personnalisés, chaque entreprise peut configurer son espace de travail selon son organisation. Les normes actuelles en matière d’accessibilité, d’isolation et de performance énergétique sont respectées, garantissant un confort durable. Les locaux sont livrés en état brut de béton ou avec des finitions avancées selon vos attentes, vous laissant toute liberté pour personnaliser vos aménagements intérieurs. La qualité de construction et l’architecture contemporaine assurent également une valorisation patrimoniale sur le long terme.

Une opportunité à ne pas manquer pour développer ou diversifier votre patrimoine professionnel.

Nous écrire
Les champs indiqués par un astérisque (*) sont obligatoires
Un Projet ?
Être rappelé